Ficha
PRECIOSOS PISOS DE OBRA NUEVA
Cunit - REF. 1304

115 m2

22 m2

3

2

4
venta: 325.420 €
Descripción
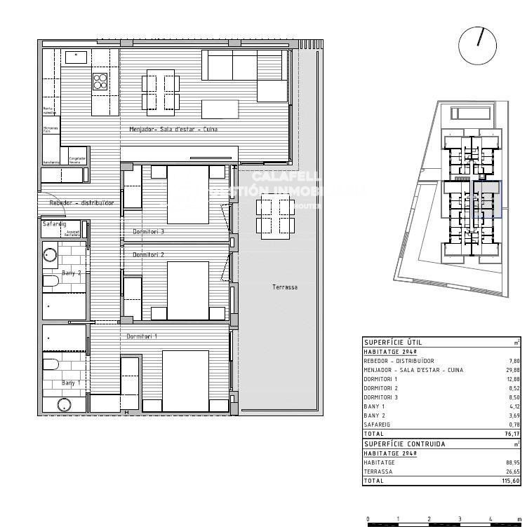
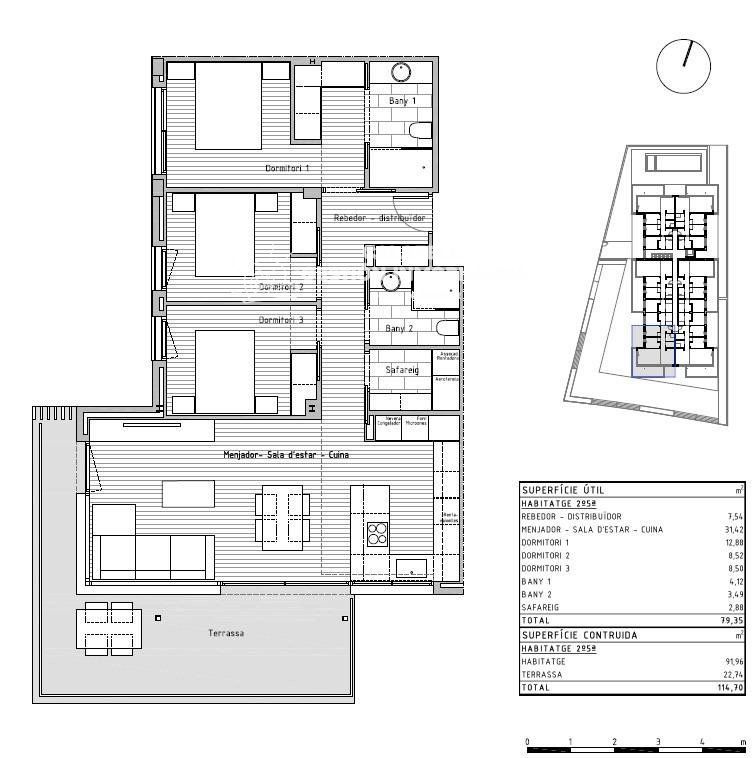
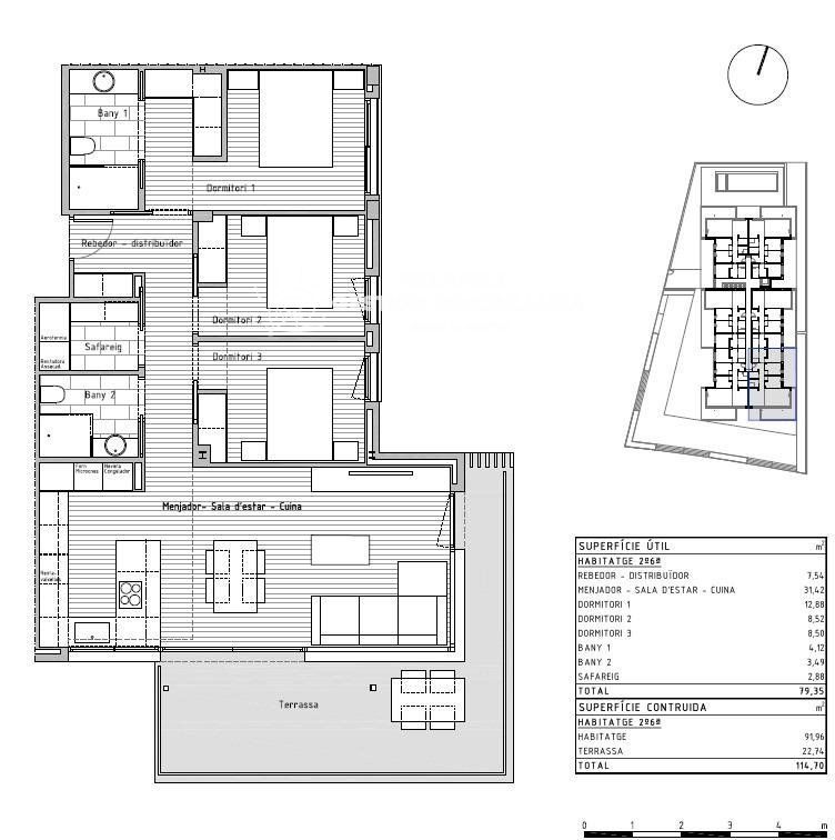
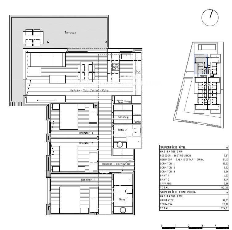
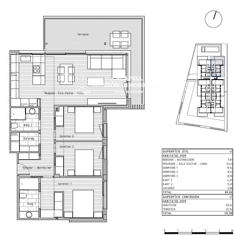
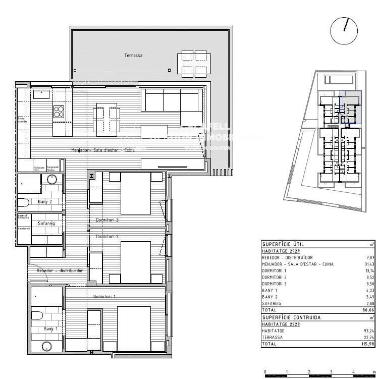
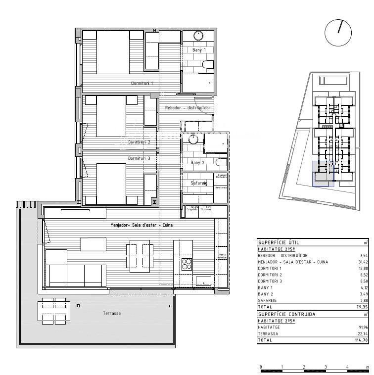
Si desea vivir en un entorno privilegiado cerca de todos los servicios no deje escapar esta oportunidad venga a visitar esta nueva construcción de un edificio plurifamiliar compuesto por 24 viviendas situado en la localidad de Cunit. .Este bloque de nueva construcción ha sido diseñado con un enfoque en la elegancia moderna. Cada piso ha sido meticulosamente diseñado para maximizar el espacio y la luz, creando un ambiente acogedor y atractivo y con los más altos estándares de calidad. Desde los acabados interiores hasta los electrodomésticos de alta gama, como cada pequeño detalle, garantizando la máxima satisfacción para del propietario..Con una superficie construida total de 115,98 m2 de vivienda, y 80,06 m2 construidos interior de vivienda se encuentra distribuidos 3 amplias habitaciones (1 de ellas suitte), salón comedor con cocina americana de 31,43 m2 totalmente equipada con todos los electrodomésticos, 2 baños completos, 1 lavadero con los electrodomésticos integrados de lavadora y secadora marca BALAY, recibidor, terraza de 22,74 m2, suelos porcelanamicos en toda la vivienda, carpintería exterior de aluminio de color gris claro de perfil eficiente y con rotura de puente térmico, carpintería interior con puertas correderas lacadas en blanco..Además, contamos con zona comunitaria con piscina, ascensor y plazas de parking opcionales. .El entorno y municipio:.Cunit se encuentra situado en la comarca del Bajo Penedés y en la provincia de Tarragona aunque está incluido en la tercera corona de la región urbana de Barcelona. Limita con Segur de Calafell (localidad del municipio de Calafell), de la misma comarca, así como con Cubellas, en la comarca del Garraf, y Castellet y Gornal, en la comarca del Alto Penedés, ambos de la provincia de Barcelona..Su paisaje es típicamente mediterráneo, desde los 2,5 km de playas de arena fina, protegidas por los espigones que le proporciona sus formas semicirculares características, pasando por las planicies agrícolas (denominadas Prats de Cunit i Plana del Castell) hasta las sierras del centro (Sierra de Sant Antoni) y norte del municipio, siendo parte de las últimas montañas de la sierra litoral catalana....
Características
Precio Venta 325.420 €
Precio/m² 2.830
Año de construcción 2023
Construidos 115 m2
Útiles 80 m2
Dormitorios 3
Baños 2
Cocina Amueblada
Calefacción Central
Terraza
Altura/Planta 4
Estado Obra Nueva
Tipo de suelo Gres porcelánico
Ascensor
Aire acondicionado
Piscina comunitaria
Calificación Energética (C) VER
Luz
Agua
Escalas de eficiencia


Eficiencia Emisiones: 5,00
Eficiencia Consumo: 30,00
30
5

Contáctanos

Si deseas más información sobre esta propiedad, por favor, rellena el formulario.

 Sí, he leído y/o acepto las Condiciones de uso y la Política de privacidad
Inmuebles similares:
 
262.500 €
Ref. 1249  106 m2  3  2
Piso en venta en El Vendrell, con 106 m2, 3 habitaciones y 2 baños, Piscina, Ascensor, Aire acondicionado y Calefacción Gas natural.
 
375.000 €
Ref. 1244  80 m2  3  2
Piso en venta en Calafell, con vistas frontales al mar, con 80 m2, 3 habitaciones y 2 baños, Piscina, Garaje, Trastero y Ascensor.