Ficha
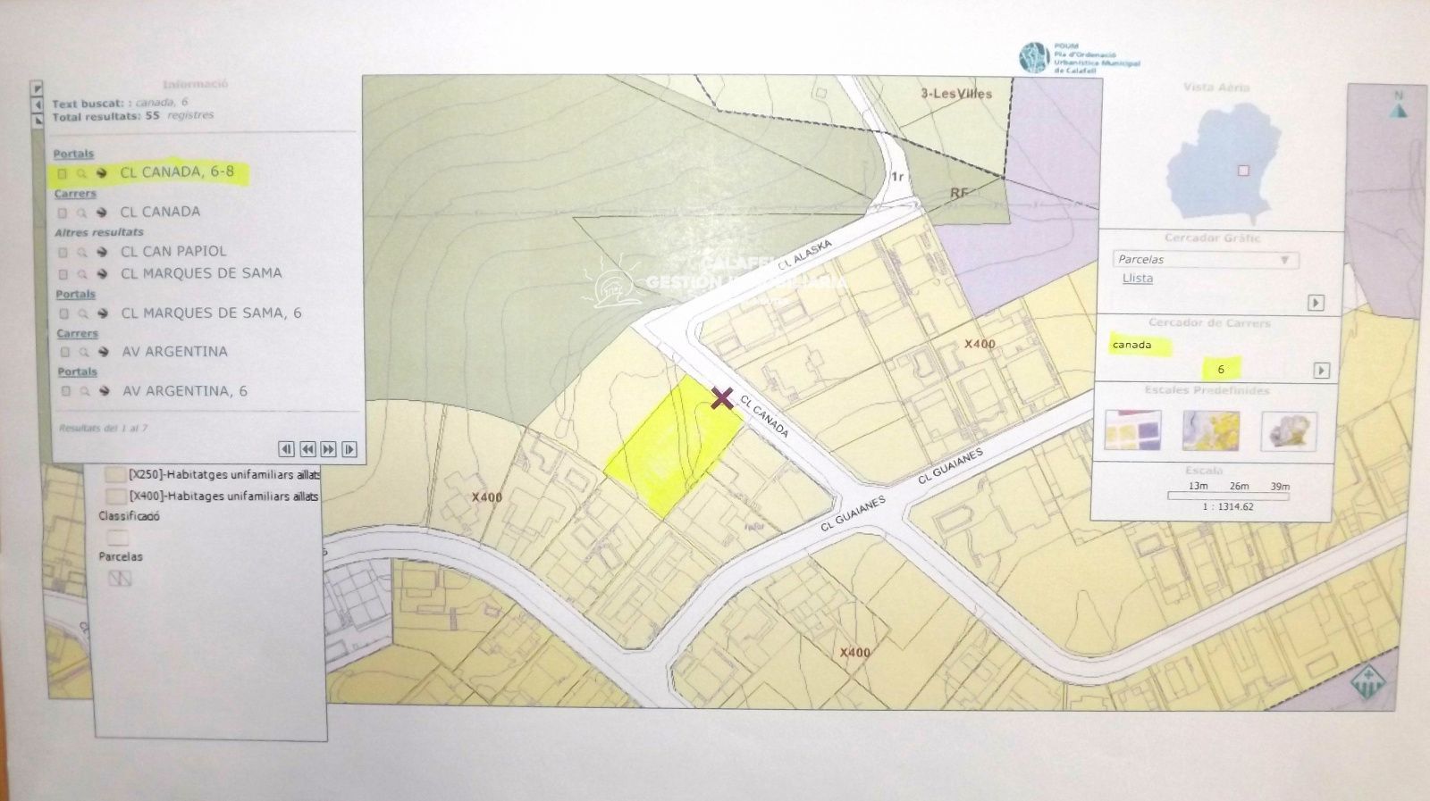
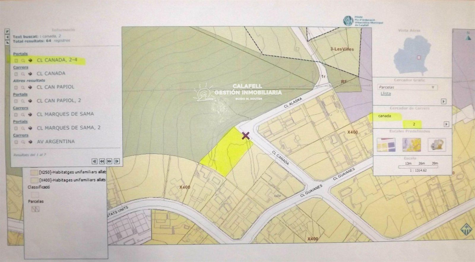
Oportunidad Única: Parcela de 2.091 m² con Vistas al Mar y Capacidad para 5 Chalets.
Segur De Calafell - REF. 1313
venta: 160.000 €
Descripción
Un Santuario de Paz con Vistas Infinitas...Este terreno no es solo una parcela, es un mirador exclusivo desde el que contemplar la inmensidad del azul. Imagina el suave sonido de las olas en la distancia y la brisa marina acariciando tu rostro mientras te deleitas con panorámicas que cambian con la luz del día. Es un lugar donde la belleza natural te envuelve, creando una atmósfera de profunda paz y tranquilidad. Lejos del bullicio, encontrarás el remanso que buscas para desconectar y vivir en armonía con el entorno. La serenidad es la esencia de este lugar, un privilegio que pocos pueden disfrutar...Conexión y Comodidad sin Sacrificios..A pesar de esta idílica calma, la parcela se beneficia de estar en una zona completamente urbanizada, lo que significa que tienes a tu disposición todas las comodidades modernas sin renunciar a la privacidad. Cuenta con calles asfaltadas, alcantarillado, luz, agua y la imprescindible fibra óptica, garantizando una vida cómoda y conectada. Esta excelente infraestructura no solo facilita la construcción de hasta cinco chalets unifamiliares, ofreciendo una oportunidad única para inversores o para crear un complejo residencial familiar, sino que también asegura que tu futuro hogar estará integrado en una comunidad con todas las facilidades necesarias...¿Estás listo para construir no solo propiedades, sino un estilo de vida en este enclave privilegiado?
Características
Precio Venta 160.000 €
Útiles 2.091 m2
Parcela 2.091 m2
Precio/m² 77 €/m²
Luz
Agua
Escalas de eficiencia



Contáctanos

Si deseas más información sobre esta propiedad, por favor, rellena el formulario.

 Sí, he leído y/o acepto las Condiciones de uso y la Política de privacidad
Inmuebles similares:
 
189.000 €
Ref. 1351
Parcela en venta en Segur De Calafell.